Work begins on Archives instruction and programming space
Feb. 11, 2026
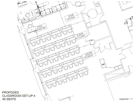
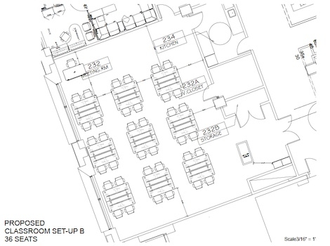
The large conference room on the Library's second floor (KL232) is being transformed into a state-of-the art, flexible programming space that will accommodate classes of up to 40 students seated at tables. The renovated space will provide room for students to see archival materials up close—be they manuscripts, renderings, maps, or other large formats. The hands-on experience of learning how to dig into historical records builds essential research skills, as students learn to identify and analyze different types of sources and their context.
Configured with lecture-style seating, the room will accommodate larger audiences for talks such as our Faculty Author Series, film screenings, exhibit receptions, or other public programs. The room has not seen a major renovation since opening day over twenty years ago, so we are very much looking forward to the upgraded furniture and technology.


Renderings of the room configured with seating arranged for up to 40 students, or pods for viewing larger materials and for collaboration.

The conference room in January, seen after selective demolition, will get a major technology upgrade and facelift.
Renovation updates
Dec. 19, 2025
Less than six weeks ago, the construction firm started with selective demolition on the Library’s fourth floor and then proceeded with framing out a wall that outlines the new and expanded footprint for collections storage space and the mechanical room. That wall has since been filled in, electrical rough-in work has been completed & inspected, and ducting work for the new HVAC system has been started.

Early December photo of the metal framed wall separating the new archival collections storage space and mechanical room from the library’s 4th floor stacks.

Mid-December photo of Archives and Special Collections space with framed wall filled in, ducting staged for the new HVAC system, and preliminary electrical roughed-in.
Construction begins
Oct. 20, 2025
We are excited to announce that construction to expand and renovate the UC Merced Library’s archives will begin Monday, November 10, 2025 with contractor Burke Diversified.
The McFadden-Willis Reading Room will be open during this time. The remainder of the 4th floor will be closed until construction is completed in summer 2026. For access to Library materials located on the 4th floor, visit the 2nd floor Services Desk for assistance.
At completion, this project will result in a secure, climate-controlled archive and special collections on the Library’s 4th floor. In addition, KL 232 will be renovated to serve as an instruction space that can accommodate research with archival materials and as a programming venue for library events including those showcasing special collections and the region’s history.
Construction is made possible with a National Endowment for the Humanities (NEH) award of $750,000, matching funds provided by Chancellor Juan Sánchez Muñoz from philanthropic gifts, as well as Library funds.
This project will expand the UC Merced Library’s capacity to collect and preserve primary sources that reflect the cultural, social, and environmental heritage of the Sierra Nevada and Central Valley.
Thank you to the support of so many colleagues and community members who have been instrumental in bringing us to this construction phase.
News
For additional background on the NEH grant, visit the following news items.
- NEH Grant Reinstated (28 July 2025)
- NEH Grant Awarded to UC Merced for Sierra Nevada-Central Valley Archive in Library (3 May 2022)

